
Spiegel Gliss Lenus Rechthoek 100cm sensor bediening met dimbaar licht - Spiegelverwarming
3 kleuren Led-verlichting geleidelijk 3000K tot 6500K ✓ Dimbaar verlichting ✓ Geïntegreerde Spiegelverwarming ✓ Bediening via sensoren ✓ Verlichting achter rondom met front strook ✓ A-Kwaliteit spiegelglas
- ⭐⭐⭐⭐⭐ Beordelingen 8,8 / 10
- Gratis bezorging vanaf €100
- 14 dagen bedenktijd
- Meer informatie? Neem contact op over dit product
Spiegel Gliss Lenus Rechthoek 100cm sensor bediening
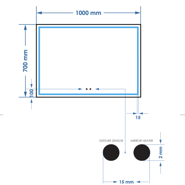
Breng luxe en comfort in je badkamer met de Gliss Design Lenus spiegel. Deze badkamerspiegel van 120x70 cm combineert een strak design met moderne technologie en is ideaal voor wie zoekt naar een stijlvolle grote spiegel met slimme functies.
De rechthoekige spiegel zonder profiel heeft een elegante uitstraling die past in iedere badkamerstijl. Dankzij de indirecte LED-verlichting aan de achterzijde ontstaat er een warme sfeer, terwijl de front lichtstrook rondom zorgt voor extra helderheid tijdens het scheren of opmaken.
Uniek aan deze spiegel met verlichting is de sensorbediening:
-
Beweeg je hand langs de rechterkant van de spiegel om de eerste lichtkleur te activeren.
-
Herhaal deze beweging voor kleur twee en drie.
-
Houd je hand voor de spiegel om het licht te dimmen of opnieuw om het te versterken.
-
Wil je de spiegel verwarmen? Houd je hand langs de linkerkant en de spiegelverwarming wordt ingeschakeld.
De verlichting is bovendien in drie kleuren instelbaar en volledig dimbaar. Hierdoor pas je de sfeer in jouw badkamer eenvoudig aan. De bediening is volledig contactloos, wat zorgt voor extra hygiëne en comfort.
Of je nu een ronde spiegel, een spiegel online, of juist een badkamer spiegel met verlichting zoekt: de Gliss Lenus is een ware eyecatcher voor elke ruimte.
Belangrijkste kenmerken:
-
Merk: Gliss Design
-
Model: Lenus
-
Vorm: Rechthoekig – 120x70 cm
-
Profiel: Geen
-
Verlichting: LED, indirect én front rondom
-
Kleur: 3 standen instelbaar
-
Dimbaar: Ja
-
Bediening: Bewegingssensoren
-
Spiegelverwarming: Geïntegreerd, met sensorbediening
Merk | GLISS DESIGN |
Artikelcode | SLE120V2 |
SKU | SLE120V2 |
EAN | 8721312045795 |
Merk | Gliss Design |
Model | Lenus |
Vorm | Rechthoek |
Afmeting | 100x70cm |
Kleur omlijsting | Geen |
Incl. Spiegelverwarming | Ja - Geïntegreerd |
Bluetooth | Nee |
Digitale scherm | Nee |
Type Schakelaar | Sensor |
Plek verlichting | Achter rondom |
Type verlichting | Led verlichting |
Kleur verlichting | Kleurtemperatuur van 3000K tot 6500K |
Dimbaar | Ja |
IP-Waarde | IP44 |
Garantie | 2 - jaar |
average of 0 review(s)
Help ons en andere klanten door het schrijven van een review